The Design Process

Our process begins with an initial consultation, where you'll meet with our design team. Depending on the project's nature and its current stage, this consultation can take place either in our studio or at the project site. During this initial meeting, we thoroughly delve into your project, covering every aspect from its inception to completion. We discuss your specific design requirements, your personal design preferences, budget constraints, dimensions, and sources of inspiration.

Based on the insights gathered during this briefing, we commence our design work. We develop your design ideas and concepts, which are then presented to you in our Design Studio. Additionally, we provide you with materials and product specifications if they are relevant to your project.

Once your design and finishes have been refined and solidified, our designer will compile a comprehensive specification document. This document serves as a detailed guide for your builders and manufacturers, ensuring that your vision is executed precisely

KITCHEN DESIGN

  • Kitchen design including 3D colour visuals, to manufacturing detail

  • Full specification including hardware, accessories & appliances if required

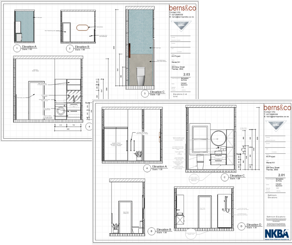
BATHROOM DESIGN

  • Bathroom layout & Vanity design including including 3D colour visuals, to manufacturing details

  • Full product selection & specifications including hardware, fixtures & fittings (if required)

Berns & Co Bathroom Design

INTERIOR COLOUR SCHEME

  • Wall coulours & coverings

  • ceiling, scotia, architraves & door colours

  • Floor coverings

  • Kitchen, Bathroom & Laundry product selection (bench tops, cabinetry, fittings selection)

  • Samples of all products specified will be provided

ADDITIONAL SERVICES

  • Spatial design

  • Feature Lighting selection

Berns & Co Spatial Design
  • Furniture selection

  • Window treatments & soft furnishings

  • Wardrobe design